• architecture

富沢西EBデンタルクリニック

所在地:宮城県仙台市太白区富沢鍛冶屋敷前42-1(39-1B-1L)
主要用途:医療施設 診療所 歯科医院
設  計:トコツク建築設計事務所
施  工:(株)プライム下舘工務店
敷地面積: 873 ㎡
建築面積: 171 ㎡
延床面積: 191 ㎡(1階:170 ㎡ 2階:21 ㎡)
階  数:2階
構  造:在来木造
工  程:設計 2018.11~2019.03
     工事 2019.04~2019.10
写真撮影:小関克郎 株式会社大武写真館

Concept

 「地域に開かれた歯科医院が地域に根ざした医療を提供」

 辺り一面畑だった郊外の土地がみるみるうちに区画整理され大型商業施設が次々に建設されています。
 そんな幹線道路沿いに地域に開いた歯科医院としてこの建築は計画されました。従来の医療施設における待合室のあり方を見つめなおし地域医療に重点を置いた医院を象徴する待合室をカフェと一体化することで地域に開かれた医院を計画しました。

 これまでの医療施設は、閉鎖的な印象を強く受けます。
 再開発によって新たなコミュニティが形成されようとしている当該地域に新しい歯科医院がどのように地域の人々に受け入れられるべきか、接客や技術によってお客様を満足させることはもちろん、より身近に歯科医院を感じてもらえないだろうか。近年の歯科医院は虫歯治療の枠組みを超えて予防や矯正、クリーニングなど日常となり我々の生活の一部に入り込んでいます。
 従来から待合室や診察室は閉鎖的な空間に治療待ちのお客様が身を寄せ合い不安な心理状態で待ち続けています。時間が貴重な時代に待ち時間を有効に、自分の時間として有意義な、リラックスして、自ら選択した空間で過ごしてほしいとの思いで、カフェのような気持ちの良い待合室を実現できないかと計画しました。
 読書を楽しみ、緑の隙間から待ちゆく人を横目に紅茶を飲む、仕事のメールをコーヒーを飲みながら送るそんな日常を医療施設に持ち込んだのが当該医療施設です。

 地域に開いた歯科医院は徐々に地域に受け入れられています。カフェスペースには地域の人が座ってコーヒーを飲んでいる姿がこの交差点のいつもの日常になりつつあります。
 開かれた待合室にはカフェスペースの「賑わいの場」と従来の待合室のような「落ち着きの場」の2種類の空間が存在します。「治療の前に気持ちを落ち着けるために静かなところにいたい。」「クリーニングの前に本を読みながらコーヒーでも飲んでリラックスして待っていよう。」など、地域の方は、気分に合わせて居場所を選択できる待ち時間を自分の有意義な時間に置き換えることができます。前の道を歩く通りすがりの知人とカフェスペースでお茶会が始まります。

「歯科医院と地域とのつながり」です。
「地域に開き、招き入れる出入り自由な医療施設」を実現しています。

ブログはこちら

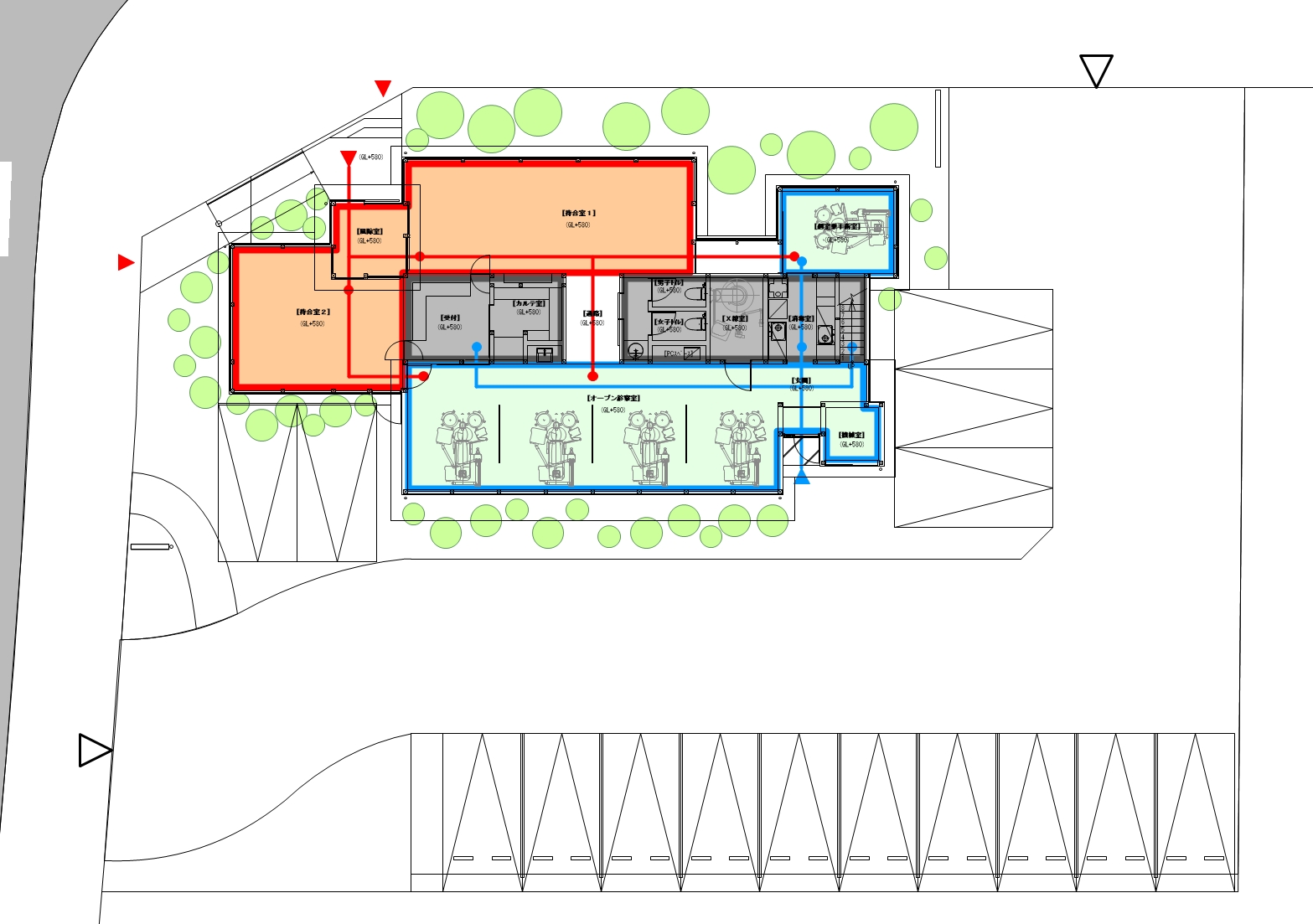
平面図


富沢西EBデンタルクリニック 歯科医院富沢西EBデンタルクリニック 歯科医院富沢西EBデンタルクリニック 歯科医院富沢西EBデンタルクリニック 歯科医院富沢西EBデンタルクリニック 歯科医院富沢西EBデンタルクリニック 歯科医院富沢西EBデンタルクリニック 歯科医院富沢西EBデンタルクリニック 歯科医院